Header graphic on every page. Includes Company name and contact info.
13-48 Connector Reverse Engineering


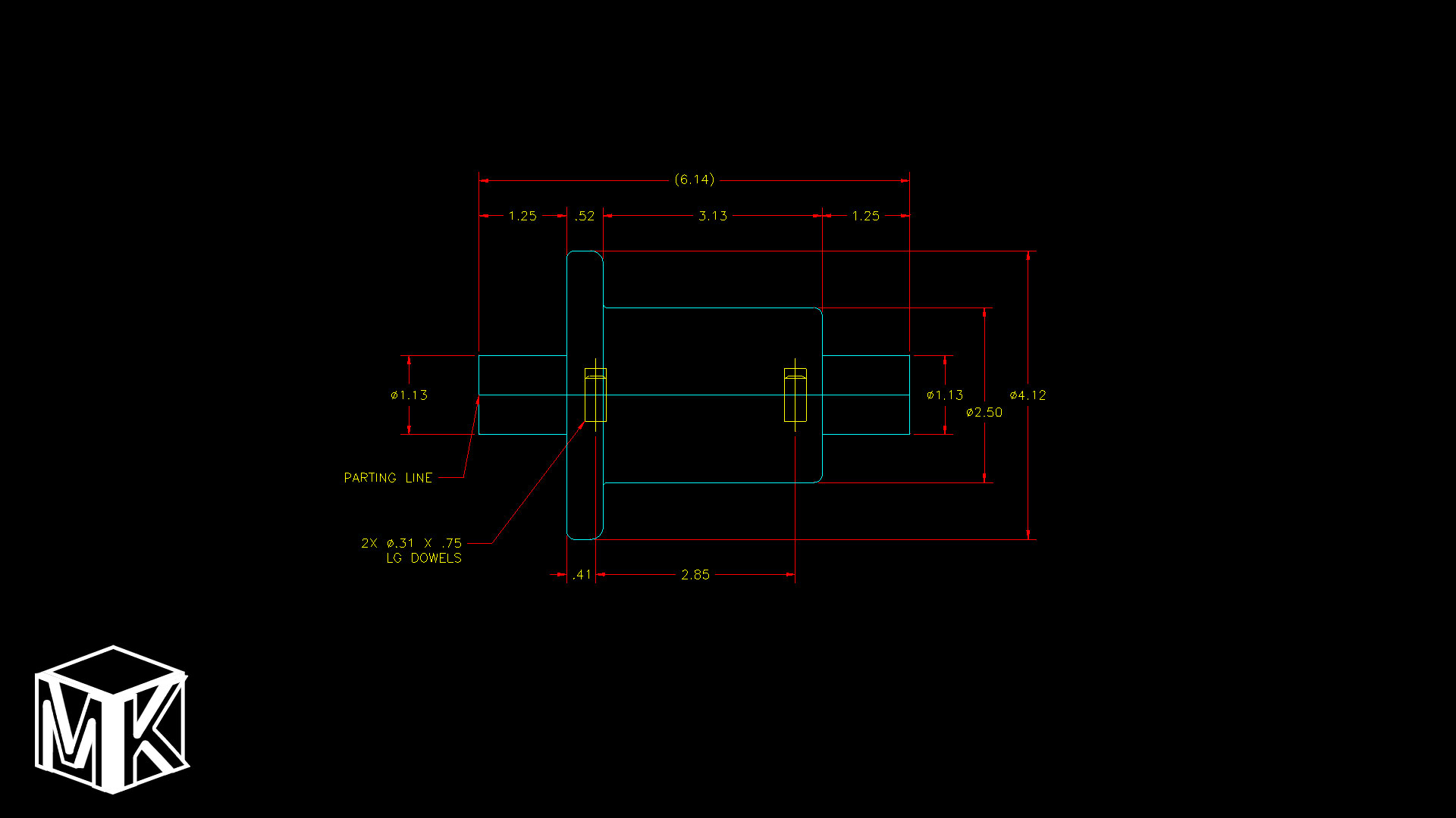
This was a reverse engineering assignment for the second semester class of the Digital Design and Graphics Technology (DDGT) two-year program. We were tasked to gather dimension based off a 3D printed part and recreate it in AutoCAD using it and a reference drawing of a sand casting mold which it originated from. Because of this we were also required to recreate the outer mold design as part of the drawing along with a 3D model.
Thumbnail image connector 3D render with a whole and half view
Thumbnail image of connector front and top view drawings
Thumbnail image of connector sand casting mold view


To open PDF's correctly download latest version of Adobe Reader Here:
adobe reader download link