Header graphic on every page. Includes Company name and contact info.
9-39 Casing
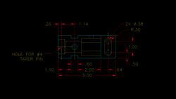
This is a casing based off a drawing that required 4 different section views along with two regular orthograpic views as an assignment in the first semester class of the Digital Design and Graphics Techonology (DDGT) two-year program. It was the second drawing that was required to create a 3D model for within AutoCAD.


3D render of casing created in AutoCAD
3D render of a half section cutaway view of casing created in AutoCAD


AutoCAD drawing of casing front view
AutoCAD casing section view containing 4 sections
AutoCAD casing top side view
To open PDF's correctly download latest version of Adobe Reader Here:
adobe reader download link