Header graphic on every page. Includes Company name and contact info.
9-51 Caster
This is a caster wheel assembly we were tasked as an assignment in the first semester class of the Digital Design and Graphics Techonology (DDGT) two-year program. It's based off a 2D working drawing we had to recreate and it was the third assignment that had us utilize what we learned in creating 3D content within AutoCAD.


Thumbnail image of caster assembly
Thumbnail image of caster exploded assembly
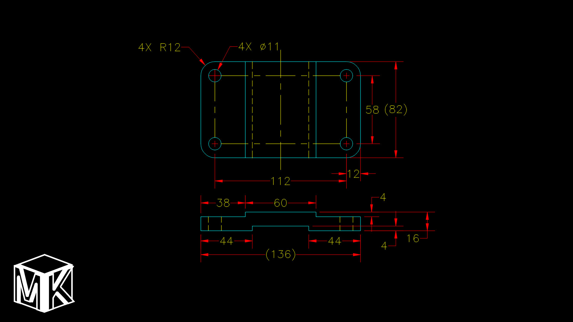
Thumbnail image of drawing of caster bracket
 
Thumbnail image of caster assembly
Thumbnail image of caster exploded assembly
Thumbnail image of drawing of caster bracket


To open PDF's correctly download latest version of Adobe Reader Here:
adobe reader download link