header graphic on every page. Includes Company name amd contact info
Residential Design 


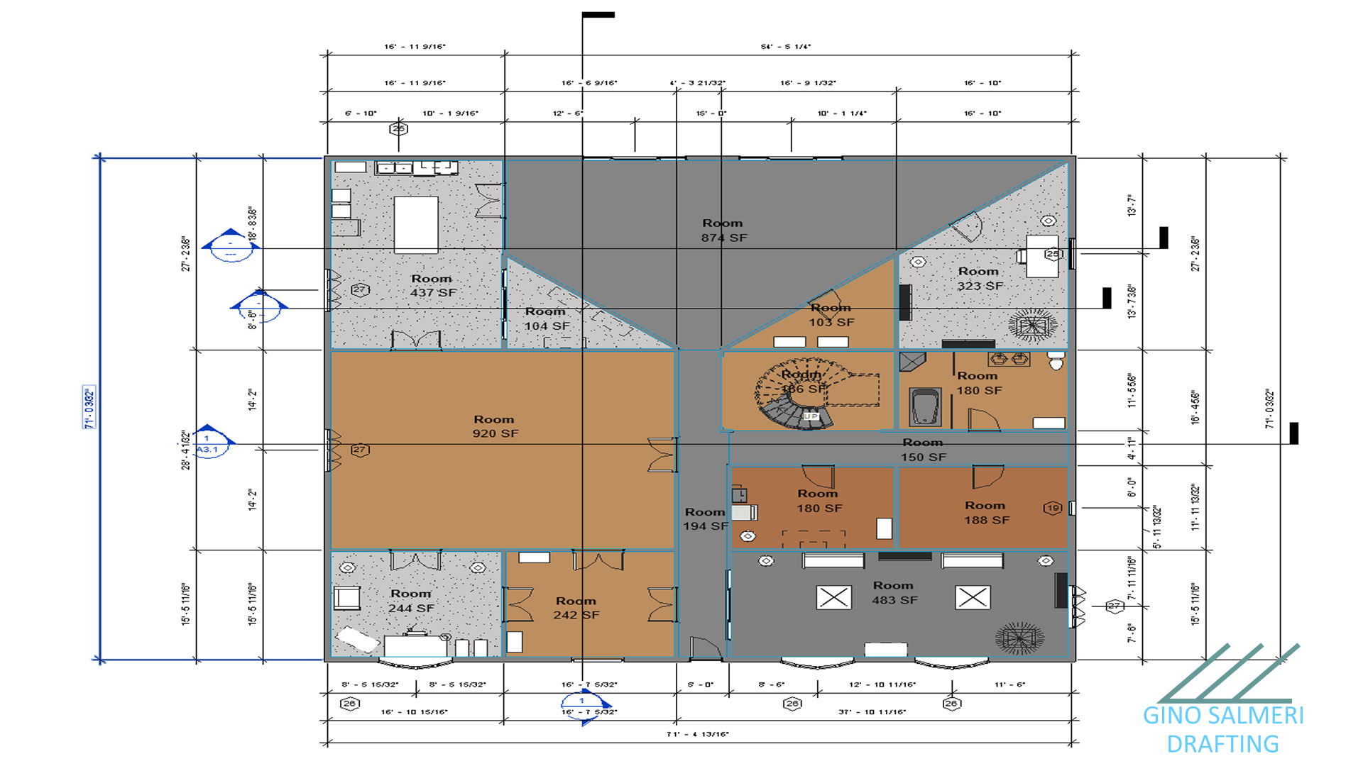
The content on this page is from a project in which I was to construct a residential building utilizing Architectural Design in combination with 3d Modeling in Revit. The first image is a dimensioned first floor view. The second image is a 3d render of the exterior. The last image is the title page for this project. .


Thumbnail image of dimensioned first floor
Thumbnail image of 3d rendered exterior view
Thumbnail image of title sheet