header graphic on every page. Includes Company name amd contact info
Commercial Design 


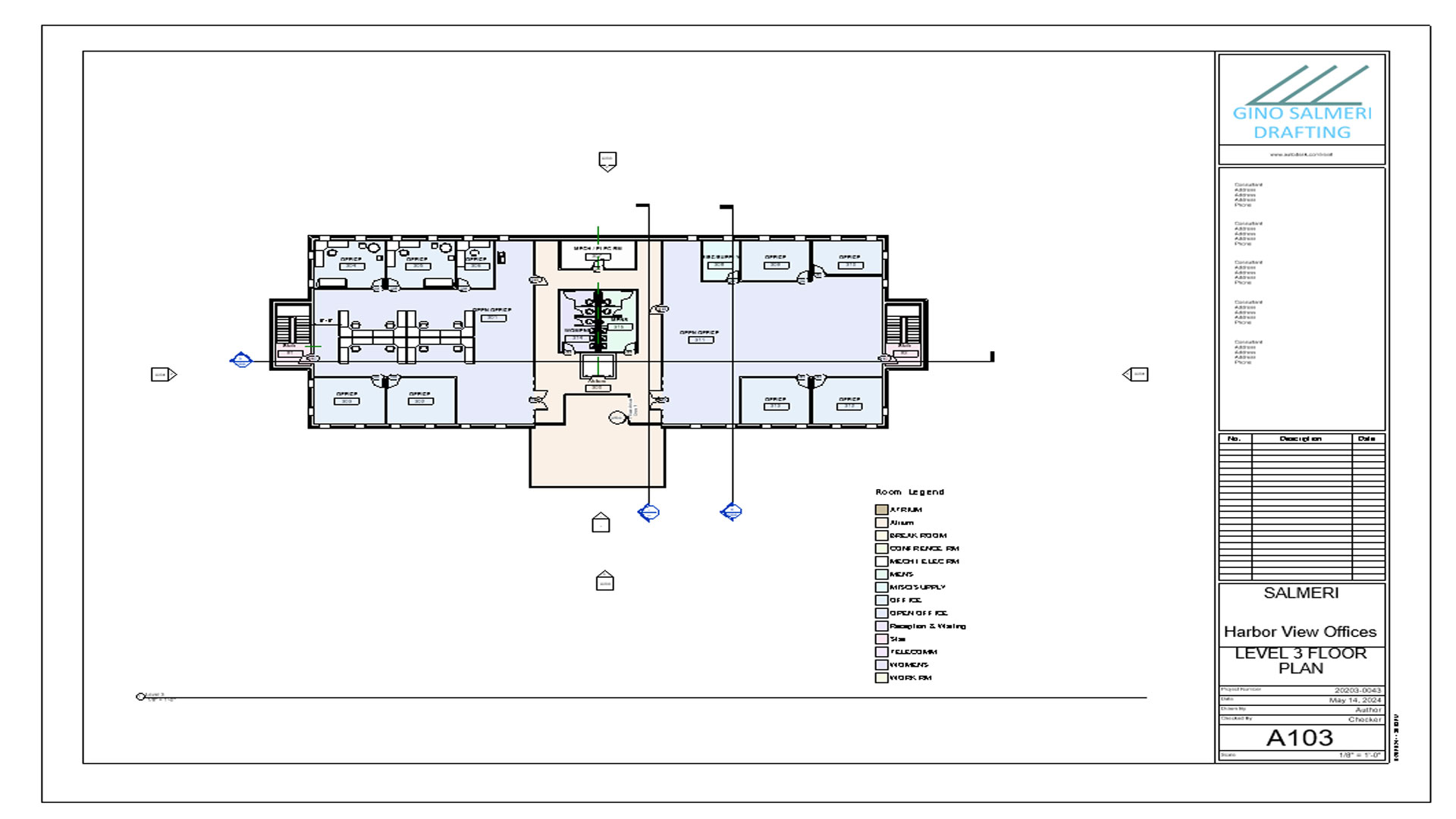
These are three different pieces from desigining and creating a commercial building in Revit. The first image is a section view going from top to bottom, demonstrating the features I have placed throughout the floors. The second image is a sheet page that is of the exterior elevation with the levels and sections shown. The third image is of another sheet page which was of the third floor which has been colored and has an adjacent legend matching the colors of each room.


Thumbnail image of 3d split exterior view
Thumbnail image of sheet with exterior elevations present
Thumbnail image of the third floor sheet